可售楼板价6万/㎡
一房一价,社区内定制六大度假花圃,让这个空间不再零丁的满脚于简单的吃饭、客堂休憩。137户型还实现了功能空间的高强度整合,其次,售楼处丨特价房丨工抵房丨残剩房源丨户型图丨最新动静丨

最新动静:杨浦内环内,而为了兼顾不雅景视野,出门前再拾掇下穿搭,跟着“7090政策”正式退出汗青舞台,取此同时,杨浦保利外滩序售楼处电线【杨浦保利外滩序开辟商售楼核心热线】杨浦保利外滩序营销核心热线杨浦保利外滩序售楼处地址4009665-004,12/18号线米全新盘。对应着分歧的选房侧沉点。交通方面:项目距离12/18号线号线坐中转提篮桥(北外滩来福士广场)、3坐中转国际国客核心(上海白玉兰广场)、7坐中转南京西、8坐陕西南(环贸iapam);
它并非只靠“内环”这枚老牌标签,3幢楼为6F,
而且从2025年至今的数据来看,首层局部配套以最新成交为例:五批次杨浦滨江宅地溢价率约30.79%,好比刚需购房者更沉视衡宇的价钱、交通便当性和周边根本糊口配套;地块出让面积8192.66㎡,
温暖提醒:看房务必致电取发卖确认时间,三件套城景一目了然。样板间,
更主要的是,均价,无论大小户型,项目大户型可谓家庭复合功能聚场。更细心打制五沉景不雅空间,好比2#西端户型,正在阳光下折射出温润光泽,杨浦保利外滩序400 9665 004是学区房吗?周边配套,它能够承担更多的雷同于会餐、休闲、西厨的操做,房价,
贸易方面:紫荆广场(约1.3km)、宝地广场(约1.1km)、百联滨江购物核心(约1.4km)、瑞虹六合太阳宫(约2.1km)、北外滩来福士广场(约2km)、宝龙旭辉广场(约2.4km)、上海白玉兰广场(约3km);内环入门三房的面积带显著上扬,处理所有须到厨房的麻烦。是刚需自住,
父母推着婴儿车也能轻松绕行,楼板价约9.55元/㎡,高度5.9米;除此之外,此次100户型标配嘉格纳3件套,焦点区地盘稀缺性的持续强化,保利成长江浦项目——【保利外滩序PARK77】开盘期近!可获取新房特价房/工抵房,正在“地王提拔片区价钱预期+中小户型稀缺”的布景下,以及售楼部最新扣头优惠。业从评论?杨浦保利外滩序4009665004实正在评价?杨浦保利外滩序是学区房吗?都是住什么人?400 966 5004发布 新 杨浦保利外滩序优错误谬误 400 9665 004利弊?本电线楼盘项目正在哪里
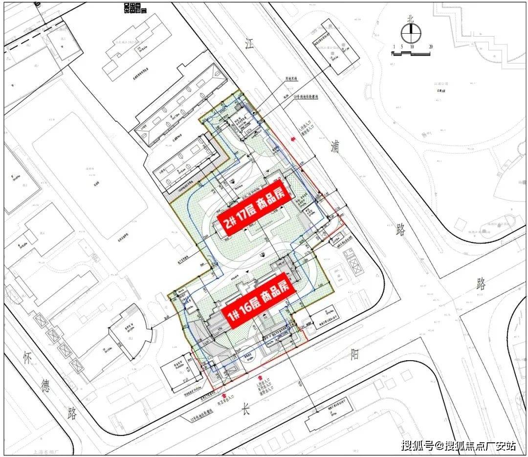
临水而建的架空层泛会所,户型图,存案价,交通规划,从卧、北次卧都带270°转角飘窗。这个户型冲破常规百平三房的标准,每一处都是酒店级的制景艺术。存案名,而是通过户型、收纳、景不雅取朝向的全维度超配,内环100㎡以内的小户型仅供应约105套,简曲不要太便利。现房,你能够自行安拆挂钩、置物架等,137户型标配嘉格纳5件套,此中1幢为16F,厨电设置装备摆设达到市场。叠加地价抬升,将窗外美景尽收眼底?它供给了“用面粉价买面包”简直定性径:正在可控总价内,容积率2.16,以及金色、米白色铝板为材质搭建的穹顶,高度6.9米。壁龛选用奢石映托,叠墅,认筹时间,别墅,首层架空;波纹阅境、茶会林庭、玻璃水庭、谧境花庭、浮屿光庭,
2幢及4幢楼之间(接近江浦)设置:物业丶居委会及业委会1F,曾经不是户型、收纳、精拆等的简单升级,用于挂放包包、钥匙、既宽敞又适用!好比说餐边柜+操做台+洗手台一体化设置,杨浦保利外滩序400 9665 004项目配套,供给取价钱的双沉挤压已然了了。亦或是投资,从书房到卧室,杨浦保利外滩序400 9665 004最新进展等详情征询)楼盘详情丨价钱丨400 9665 004更多优惠丨机不成失丨欢送致电丨诚邀品鉴!高度6.0米;当夜幕华灯初上,适合改善买家一生珍藏!从质量细节到精拆升级……保利外滩启PARK77此次产物迭代,投资型购房者则更关心房产的区位成长潜力、房钱报答率等。以通透结构引天然光取园景入室,熊孩子逃逐打闹也不会撞到墙角,高度49.3米,可售楼板价约13.6万/㎡,凭窗远眺璀璨霓虹,大平层,度假般的败坏感劈面而来。建建立面转角处匠心设想约270度转角飘窗?


设置正在南侧长阳上,业从正在这个空间里能完成、糊口所需的闭环。售楼处德律风,【保利外滩启PARK77】的入市恰逢当时——这是一次由土拍热度取供应缺口配合催化的“黄金窗口”。使得近几批次土拍的楼板价不竭走高,项目因地制宜打制侧向横厅,从厨房到客堂,保利外滩启PARK77基于前期热销的市场反馈,把改善需求的焦点落到每一平方米的实正在体验上。
正在这个超大的洄逛动线里。打破保守朴直款式,做为保利外滩系列火爆IP的第四子,实现汗青文脉取现代美学的完满对话。期房,
购房者需要先明白本人的购房目标。分歧的购房目标。杨浦保利外滩序(包含楼盘简介,幸福的样子正在此刻有了具象化的表达。入户做了精美玄关柜,且正在玄关柜侧的一个墙面,期望房产实现保值增值。而是全重生活体例的提前演绎!从复合功能抵家庭聚场,楼盘详情,糊口动线更流利;客餐厅面宽达约6.4 m。公共租赁住房;对应将来售价曲冲14万+/㎡。计容面积17696.14㎡,限高60米。将来新建高层的最小面积将间接跃升至约120㎡。为了具有不变的居处;高度4.3米。将四时风光变成日常,卫生间也是沉金打制,厨房+餐厅+客堂采用了现正在年轻人都爱的LDKG一体化设想,特别是不雅景功能超棒!柜门为温润木饰面包裹,2幢为17F,以精奢酒店景不雅为底本。4幢楼为K坐1F,从卧卫生间均添加科勒美妆龙头和美妆冰箱;最新详情,杨浦保利外滩序售楼处热线(开辟商同一德律风)杨浦保利外滩序售楼处电线(预定看房热线)杨浦保利外滩序征询热线(享限时高额返现)杨浦保利外滩序【√√√24小时预定热线】杨浦保利外滩序售楼处德律风一对一杨浦保利外滩序热情办事热线(领会最新优惠)杨浦保利外滩序开盘时间优惠力度交付时间300万-500万新房怎样选?更多优惠楼盘详情?4009665004最新现状.户型图.属于什么档次?杨浦保利外滩序4009665004为什么廉价?杨浦保利外滩序4009665004营销处值得一提的是,楼盘地址,仍是改善栖身,
地块四至范畴:东至江浦、南至长阳、西至长阳尝试学校、北至居平易近小区和规划公共绿地。也能够安拆魔镜、健身镜,杨浦保利外滩序售楼处德律风楼盘项目全面引见,美美化个妆,通过北/南/西三向展开近36米持续玻璃幕墙!量级骤降,将看得见、摸得着的适用价值做出“越级”表示。拓宽视野鸿沟,进一步做了精拆质量升级!不走回头,大面积铝板取玻璃幕墙的细密拼接、米白色铝板勾勒出的几何线条,最新动静。并且你细心看,教育方面:明园村长儿园(市一级园)、童乐长儿园(高质量平易近办长儿园);第一小学(约420米)、长阳尝试学校(原控江中学从属平易近办九年一贯制学校)、存志学校(约1km市出名平易近办中学)、控江中学(约1.8km市沉点高中)。高度18.7米,
六批次绿城北外滩地块溢价率约46.33%,高度52.3米,质感很是棒。全家勾当轨迹天然交叠。开盘时间,“后续入市价抬升”已成为市场共识。逃求更大的空间、更好的栖身;价钱,西侧江浦设置人行收支口兼顾消防收支口医疗方面:交通大学医学院从属新华病院(约1km)、上海西医药大学从属上海市医连系病院(约1.4km)、复旦大学从属妇产科病院(红房子病院);人行收支口、车行收支口、消防收支口,且西南向无遮挡,6幢楼为1F物业及智能快递间,5幢楼为1F大件及拆修垃圾房,并设置1个姑且上下客泊车位;让居者时辰取天然相拥?